



Kondensacyjny kocioł olejowy Domusa JAKA HFD 30 CONDENS OD został zaprojektowany, aby zapewnić wysoką wydajność w warunkach zewnętrznych, optymalizując przestrzeń wewnętrzną i gwarantując efektywne oraz przyjazne dla środowiska działanie. Z mocą użyteczną 28,7 kW przy 80°C/60°C, ten kocioł wyróżnia się zaawansowaną technologią kondensacyjną, solidnymi materiałami i odpornym na warunki atmosferyczne designem. Jest to idealne rozwiązanie dla tych, którzy szukają komfortu cieplnego, oszczędności energetycznej i niezawodnej instalacji zewnętrznej.
Model JAKA HFD 30 CONDENS OD wykorzystuje technologię kondensacyjną, która odzyskuje ciepło ze spalin, osiągając sprawność powyżej 103% w stosunku do wartości opałowej niższej (P.C.I.). Przekłada się to na oszczędność do 30% w porównaniu z tradycyjnymi kotłami, co pozwala znacząco zmniejszyć zużycie paliwa i koszty operacyjne.
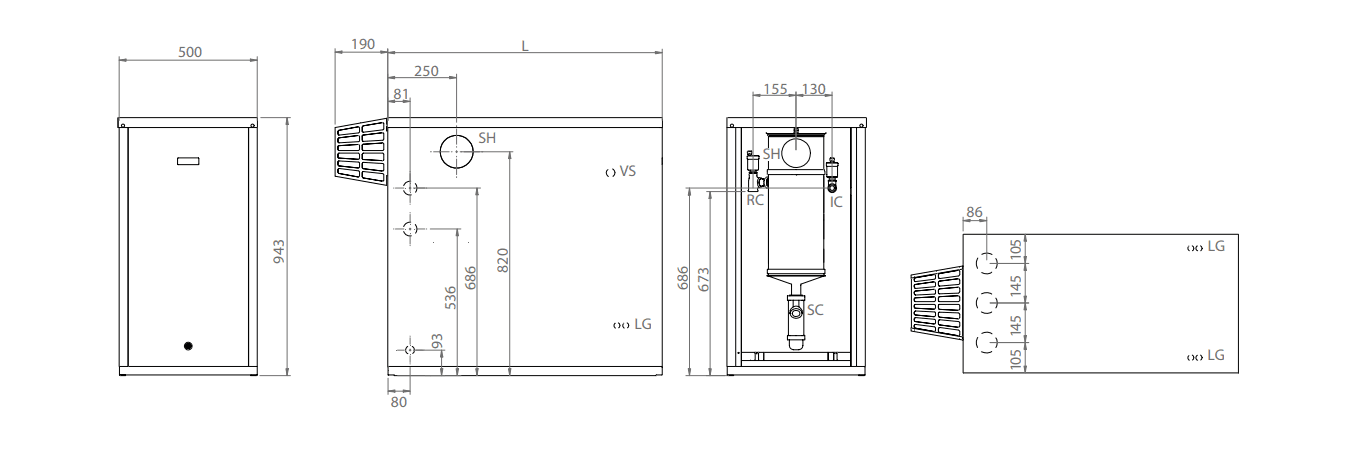
Zaprojaktowany specjalnie do instalacji na zewnątrz, ten kocioł posiada szczelne obudowy pokryte powłoką EPOXY, które chronią go przed wilgocią, deszczem i wahaniami temperatury. Jego szczelność zapewnia efektywne i bezpieczne działanie nawet w trudnych warunkach pogodowych, a kompaktowy design pozwala na optymalizację dostępnej przestrzeni wewnętrznej w budynkach.
Korpus kotła wykonany jest z żeliwa, materiału odpornego na zużycie, co gwarantuje długą żywotność. Ponadto, posiada kondensator ze stali nierdzewnej, który maksymalizuje transfer ciepła i zapewnia optymalne działanie przez lata. Te wysokiej jakości materiały zmniejszają potrzebę konserwacji i wydłużają trwałość urządzenia.
Zaawansowana izolacja akustyczna i zastosowanie szczelnego palnika sprawiają, że ten kocioł jest niezwykle cichy, zapewniając komfort zarówno w środowiskach mieszkalnych, jak i na zewnątrz.
Domusa JAKA HFD 30 CONDENS OD została zaprojektowana z myślą o łatwym montażu w każdym typie instalacji. Odprowadzanie spalin odbywa się za pomocą rur z polipropylenu, co upraszcza instalację i obniża związane z nią koszty. Dodatkowo, jej przedni panel sterowania zawiera termostat przeciwzamrożeniowy, termostat regulacyjny, podświetlany włącznik/wyłącznik i inne funkcje, które czynią jej użytkowanie bardziej intuicyjnym i efektywnym.
Kocioł Domusa JAKA HFD 30 CONDENS OD jest idealny dla domów jednorodzinnych i lokali komercyjnych, które potrzebują efektywnego rozwiązania cieplnego dostosowanego do warunków zewnętrznych. Jego wysoka moc, niski poziom konserwacji i solidny design czynią go niezawodnym wyborem dla wymagających klimatów.
Dzięki Domusa JAKA HFD 30 CONDENS OD użytkownik otrzymuje wydajne, trwałe i zrównoważone urządzenie, zaprojektowane, aby zapewnić maksymalny komfort cieplny przy minimalnym wpływie na środowisko.